Loi Malraux à Béziers (34) : 18 rue des Anciens Combattants, Béziers
Programme loi Malraux à Béziers en Hérault
L'essentiel
- Département :Hérault
- Ville : Béziers
- Type de logement : T2
- Nombre de logements : 5
- Livraison : 01/10/2015
- Prix : de 727 840 € à 727 840 €
Descriptif du programme loi Malraux Béziers : 18 rue des Anciens Combattants, Béziers
Programme loi Malraux : 18 rue des Anciens Combattants à Béziers (34500)
Programme loi Malraux Béziers (34500) : la ville
Béziers est la seconde ville du département de l'Hérault et la quatrième de la Région Languedoc-Roussillon. C'est une ville dynamique de 75 000 habitants au fort potentiel touristique de son climat, la proximité des plages et la richesse de son patrimoine.
La renommée de Béziers s'est faite à travers la viticulture, le rugby à XV ou encore la Féria, qui rassemble chaque été environ un million de participants.
Les hauts lieux du tourisme à Béziers sont le Centre Historique, le Canal du Midi et le site des 9 écluses de Fonséranes, inscrits au patrimoine de l'Humanité par l'UNESCO.
Situation de la ville de Béziers
Région : Languedoc-Roussillon
Département : Hérault
Autoroute : A9 -A75
Ferroviaire : Gare SNCF TGV TER
Population de la ville de Béziers
Ville : 75 000 habitants
Aire urbaine : 150 000 habitants
Programme loi Malraux Béziers (34500) : le quartier
La municipalité de Béziers a entrepris une vaste opération de mise en valeur de son patrimoine, en vue d'obtenir le label "Ville d'Art et d'Histoire". Le centre ville est le plus grand secteur sauvegardé de France avec près de 3 700 immeubles sur 235 hectares. Dans le cadre de cette mutation plus de 1 000 logements ont déjà été rénové.
Programme loi Malraux Béziers (34500) : l'immeuble
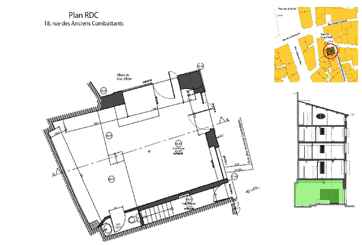
En plein coeur du centre historique, l'immeuble de 4 étages est situé sur l'angle de la rue des Anciens Combattants et de la Place du Coq, petite placette qui va bientôt devenir piétonne.
L'immeuble vendu en bloc, comprend 5 Lots.
La réhabilitation se fera selon les normes HQE, tout en conservant le cachet authentique de l'immeuble (coursives et moulures).
La répartition foncier/travaux sur cette opération en loi Malraux est de 20% 80%
Localisation du programme loi Malraux : 18 rue des Anciens Combattants à Béziers (34500)
18 rue des Anciens Combattants à Béziers
Tweeter
Notation du programme loi Malraux Béziers : 18 rue des Anciens Combattants, Béziers
Qualité d'emplacement :
Potentiel locatif :
Rentabilité :
Valorisation patrimoniale :
Prestation / qualité / développement durable :









