Loi Malraux à Bordeaux (33) : 47, rue Carpenteyre
Programme loi Malraux à Bordeaux en Gironde
L'essentiel
- Département :Gironde
- Ville : Bordeaux
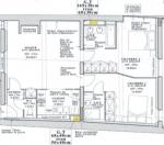
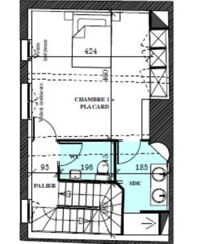
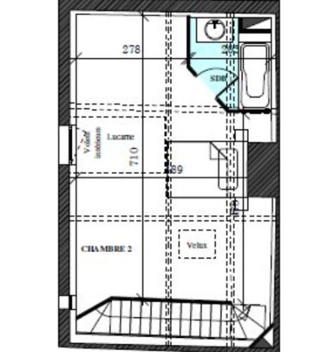
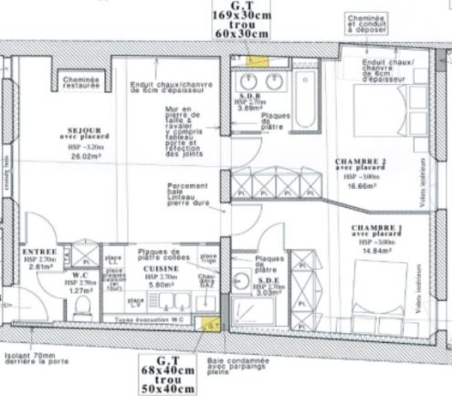
- Type de logement : T1 au T3 et maison de ville
- Nombre de logements : 13
- Livraison : 31/03/2014
- Prix : de 132 784 € à 414 550 €
Descriptif du programme loi Malraux Bordeaux : 47, rue Carpenteyre
Programme loi Malraux : 47 rue Capenteyre à BORDEAUX (33)
Programme loi Malraux BORDEAUX (33) : la ville
La ville de Bordeaux est Chef-lieu de l'Aquitaine, on peut dire que c'est une métropole "d'équilibre" en France, c'est-à-dire qu'elle permet de contrer l'hyper centralisation parisienne.
En effet cette ville est reconnue mondialement pour ses vins. Elle possède une économie solide avec la présence de nombreuses sociétés telles que Dassault, EADS, le Groupe Fayat, ou encore Prodis.
Son économie est aussi alimentée par le tourisme.
Bordeaux est également riche d'un patrimoine culturel et architectural, notamment une partie de la ville qui est classée au patrimoine mondial de l'UNESCO.
Bordeaux dispose d'une renommée culturelle avec ses musées, ses monuments, ses bibliothèques, et aussi les événements culturels qu'elle y accueille.
Cette renommée se retrouve dans le milieu sportif avec ses équipes qui évoluent au plus haut niveau (football, rugby, baseball).
Situation de la ville de BORDEAUX
Région : Aquitaine
Département : Gironde
Accès :
Autoroute : A10, A89, A62, A65
Ferroviaire : 1 gare TGV et 2 gares régionales
Population de la ville de BORDEAUX
Ville : 240 000 habitants
Agglomération : 719 489 habitants
Aire urbaine : 1 128 776 habitants
Programme loi Malraux BORDEAUX (33) : le quartier
L'immeuble se situe dans le quartier Saint-Michel, Nansouty, Saint-Genès qui longe la Garonne et s'étend jusqu'aux Boulevards. Saint Genès est un quartier calme et vivant le temps des sorties d'école. On retrouve tous les petits commerces de quartiers à Nansouty, qui en font son charme et un lieu de convivialités. Cette ambiance est encore plus prononcé dans le quartier Saint Michel qui est le lieu des marchés et des brocantes ou se confronte différentes cultures.
Ce quartier résume à lui seule la vie bordelaise !
Programme loi Malraux BORDEAUX (33) : l'immeuble et les appartements
La rue Carpenteyre se trouve parallèle au Quai de la Monnaie et au Quai Sainte Croix,qui sont les grands axes situés le long de la Garonne, permettant de rejoindre la gare et l'hypercentre. C'est deux axes sont desservis par la ligne C de tramway, l’hypercentre est à deux stations de l’immeuble et la gare à trois.
On se situe donc à proximité des moyens de transports permettant ainsi d'avoir accès à toutes les commodités, tout en étant à l'écart du bruit provoqué par le trafic des grands axes.
Le projet de revitalisation de le rue Carpenteyre peut être comparable à ceux de Chartons et Bacalan qui ont été réalisé à partir de 1995 et qui ont permis de faire doubler le prix du foncier et des loyers en 10 ans.
Répartition foncier/travaux : 45%/55%
Localisation du programme loi Malraux : 47 RUE CARPENTEYRE à BORDEAUX (33)
47 RUE CARPENTEYRE à BORDEAUX
Tweeter
Notation du programme loi Malraux Bordeaux : 47, rue Carpenteyre
Qualité d'emplacement :
Potentiel locatif :
Rentabilité :
Valorisation patrimoniale :
Prestation / qualité / développement durable :





