Loi Malraux à Bordeaux (33) : 20 rue des Remparts
Programme loi Malraux à Bordeaux en Gironde
L'essentiel
- Département :Gironde
- Ville : Bordeaux
- Type de logement : de T1 à T4
- Nombre de logements : 10
- Livraison : 01/03/2017
- Prix : de 222 635 € à 885 000 €
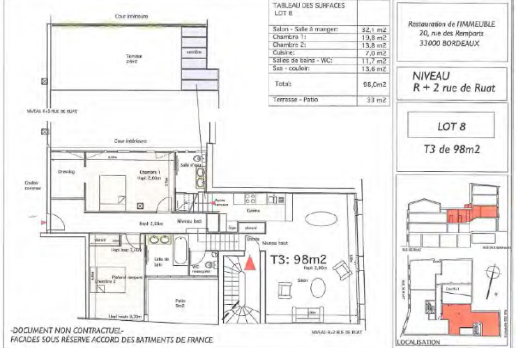
Descriptif du programme loi Malraux Bordeaux : 20 rue des Remparts
Programme loi Malraux Bordeaux (33) : 20, rue des Remparts
Programme loi Malraux Bordeaux (33) : la ville
Neuvième ville de France par sa population, Bordeaux possède un centre-ville historique et plusieurs monuments. Une partie de la ville, qui correspond au port de la Lune, a été classée au patrimoine mondial de l'UNESCO du fait de la qualité du paysage urbain. La ville est connue mondialement pour son vin. D'après un sondage BVA, la ville est classée deuxième ville préférée des français. Elle est également l'une des commune les plus attractives de France du fait de la croissance de sa population (en 9 ans, elle a augmentée de 200 000 habitants). Sa gare TGV permet de se rendre aux quatre coins de France en quelques heures.
Situation de la ville de Bordeaux
Région : Aquitaine
Département : Gironde
Autoroute : A10 (vers Paris), A89 (vers Lyon), A62 (vers Toulouse)
Ferroviaire : Gare SNCF St Jean
Population de la ville de Bordeaux
Ville : 239 399 habitants
Aire urbaine : 1 140 668 habitants
Programme loi Malraux Bordeaux (33) : le quartier
Au coeur du secteur sauvegardé de Bordeaux, l'immeuble profite de tous les attraits de la ville tels que ses commerces de proximité, ses services, ses transports et ses divers équipements. l'Immeuble jouit d'un cadre de vie idéal au coeur d'un des quartiers les plus prisés de la commune bordelaise.
Programme loi Malraux Bordeaux (33) : l'immeuble et les appartements
Au coeur d'un environnement architectural d'exception, l'immeuble du 20 rue des Remparts allie façade en pierre de taille et charme Bordelais. Cet immeuble bénéficiera d'une restauration de grande qualité et les 11 appartements du T1 au T4 conserveront leur caractère d'antant.
Son emplacement exceptionnel et la qualité du bâti font de cet immeuble un projet Malraux à très forte valeur patrimoniale.
Ratio/travaux de l'ordre de 60%
Localisation du programme 20, rue des remparts (33) : 20, rue des remparts à Bordeaux (33)
20, rue des remparts à Bordeaux
Tweeter
Notation du programme loi Malraux Bordeaux : 20 rue des Remparts
Qualité d'emplacement :
Potentiel locatif :
Rentabilité :
Valorisation patrimoniale :
Prestation / qualité / développement durable :





