Loi Malraux à Meaux (77) : Le Tan des Colombages
Programme loi Malraux à Meaux en Seine et Marne
L'essentiel
- Département :Seine et Marne
- Ville : Meaux
- Type de logement : Studio au T3
- Nombre de logements : 8
- Livraison : 01/06/2016
- Prix : de 107 280 € à 285 632 €
Descriptif du programme loi Malraux Meaux : Le Tan des Colombages
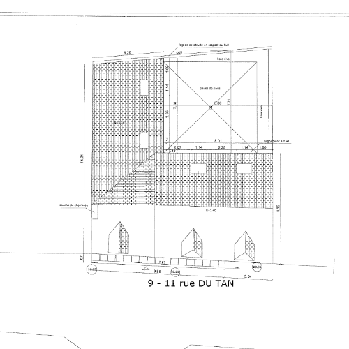
Programme loi Malraux : Le Tan des Colombages - 9, rue du Tan à Meaux (77)
Programme loi Malraux Meaux (77) : la ville
Sous-préfecture de Seine-et-Marne, Meaux, l'ancienne capitale de la Brie regorge d'histoire. Traversée par la Marne, cette ancienne cité gallo-romaine fut le théâtre de nombreuses batailles et conflits. Cependant la ville a su conserver certains vestiges de son passé mouvementé et possède un riche patrimoine historique et architectural, à l'image de ses maisons à colombages.
Programme loi Malraux Meaux (77) : le quartier
Nichée au coeur de la rue de Tan, devenue piétonne, à seulement quelques mètres de la place Henri IV et des bords de Marne, le Tan des Colombages tire son nom de son style architecture du XVIIe siècle.
Maison de ville à pans de bois, le Tan des Colombages, jouit d'une situation privilégiée en plein centre ville de Meaux dans le prolongement de l'une des plus importantes artères commerçantes de la ville, la rue du Général Leclerc menant à la Cathédrale. En cours de rénovation le quartier offre tous les services nécessaires au confort quotidien et se situe à seulement 8 minutes de la gare et de l'université de Marne la Vallée.
Programme loi Malraux Meaux (77) : la résidence
Maison de ville à pans de bois, le Tan des Colombages, accueillera après rénovation 8 appartements de type T1, T2, T2 duplex et T3. La cour intérieure en pavé de Paris, privative, apporte à cette bâtisse à l'architecture d'exception et aux appartements une belle luminosité révélant tout le charme et le caractère de cette opération unique.
Détails :
- Type de logements : T1 au T3
- Nombre de logements : 8
- Livraison prévisionnelle : 2e trimestre 2016
- Prix foncier + travaux : de 107 280 € à 285 632 €
- Maison à colombage
- Cour intérieure en pavés de Paris
- Local commercial d'époque en pied d'immeuble
- Exposition Sud, Est et Ouest
- Montage en VIR
- Quote-part travaux de 75%
Localisation du programme le Tan des Colombages : 9, rue du Tan (77)
9, rue du Tan à Meaux
Tweeter
Notation du programme loi Malraux Meaux : Le Tan des Colombages
Qualité d'emplacement :
Potentiel locatif :
Rentabilité :
Valorisation patrimoniale :
Prestation / qualité / développement durable :







